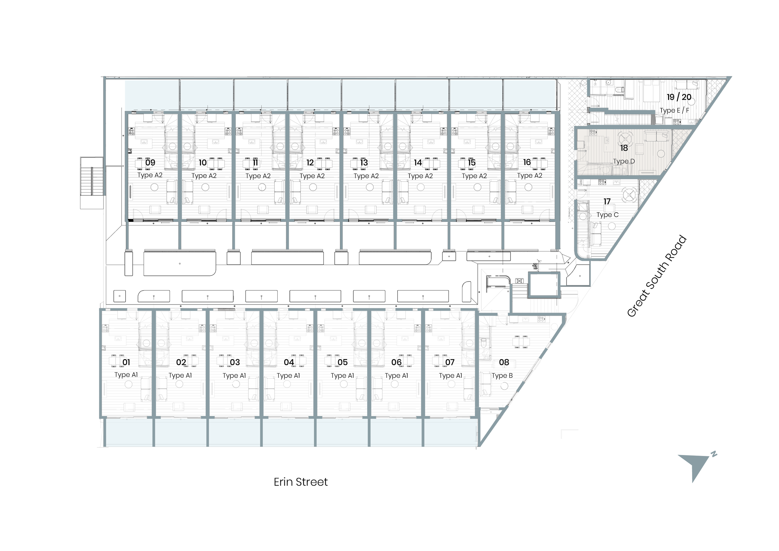
Type D

Type D offers 118sqm of refined, high-spec living with a layout designed for comfort and flexibility. It features three generous bedrooms, each with its own ensuite, along with 2 family/lounge spaces that can adapt to your lifestyle.

North-facing to capture excellent natural light, D also includes a private deck that extends the living area outdoors—ideal for relaxed, low-maintenance living in a premium city-fringe location.

Floor Plan

Previous
Previous

Type C

Next
Next

Type E